Пеллетный котел 600 кВт в Салехарде

Цена с НДС:
1 358 000 рублей
Цена с НДС на пеллетный котел 600 кВт с доставкой в
от 1 358 000 рублей
Условия в
В наличии на складе
Доставка ТК по России и Казахстану
Безналичный расчет
Есть в наличии
Можно купить в лизинг
Котел пеллетный 600 кВт
Пеллетный котел 600 кВт
Котел 600 кВт на пеллетах
Котел на пеллетах 600 кВт
Котел 600 кВт на пеллетах автоматический
Автоматический котел 600 кВт на пеллетах
Котел 600 кВт на пеллетах твердотопливный
Твердотопливный котел 600 кВт на пеллетах
Котел пеллетный 600 кВт
Котел 600 кВт на пеллетах
Котел 600 кВт на пеллетах автоматический
Котел 600 кВт на пеллетах твердотопливный
Видеообзор
Вид топки Ретортная, Автоматическая
Максимальная тепловая мощность 600 кВт
Топливо Пеллеты
Отапливаемая площадь от 4700 до 6700 м²
Технические
характеристики
Описание
товара
Комплект
поставки
Дополнительное
оборудование
Монтаж и схемы
подключения
Сертификаты
и гарантии
Подбор
котла

Технические характеристики котла на пеллетах 600 кВт

Тип Котел КВм ДО
Тип отопительного котла Твердотопливный
Вид Водогрейный
Бренд HEATEXPERT
Вид топки Ретортная, Автоматическая
Максимальная тепловая мощность 600 кВт
Максимальная тепловая мощность 0.6 МВт
Максимальная тепловая мощность 0.52 Гкал
Диапазон регулирования мощности 30-100 %
Диапазон регулирования мощности 180-600 кВт
Топливо Пеллеты
Низшая теплота сгорания проектного топлива 4900 кКал/кг
Влажность топлива 20 %
Фракционный состав топлива 6-10 мм
КПД котла на ПЕЛЛЕТАХ, не менее 80 %
Расход ПЕЛЛЕТ среднечасовой за отопительный сезон 77 кг/ч
Расход ПЕЛЛЕТ при максимальной нагрузке котла 136 кг/ч
Расход условного топлива 95 кг/ч
Максимальная температура воды на выходе из котла 115 °C
Минимальная температура воды на входе в котел 55 °C
Срок автономной работы при минимальной нагрузке до 1 суток
Срок автономной работы в среднем за отопительный сезон 7 часов
Срок автономной работы при максимальной нагрузке котла 4 часа
Давление воды, не более 0.15-0.3 (1.5-3) МПа (кгс/см²)
Номинальный расход теплоносителя 21 м³/ч
Расход теплоносителя через котел min-max 17-27 м³/ч
Гидравлическое сопротивление при номинальном расходе не более 0.07 (0.7) МПа (кгс/cм²)
Аэродинамическое сопротивление 100 (10) Па (мм. вод. ст.)
Разряжение в топочной камере 20-40 (2-4) Па (мм. вод. ст.)
Объем уходящих газов 3300 м³/ч
Температура уходящих газов, не более 220 °C
Тяга Уравновешенная
Водяной объем котла 640 л
Объем топочной камеры 0.58 м³
Объем бункера 0.8 м³
Объем штатного бункера (насыпная плотность 650 кг/м³) 520 кг
Размер топочной камеры, диаметр*высота 900х1410 мм
Присоединительные размеры по водяному тракту 80 Ду
Присоединительные размеры газохода уходящих газов, ширина*высота / сечение 600х200 / 0.12 мм/м²
Габаритные размеры блока, длина*ширина*высота 1950х1600х2500 мм
Габаритные размеры установки, длина*ширина*высота 3050х1600х2500 мм
Масса 2800 кг
Конструкция котла трубная, вертикальная
Количество контуров Одноконтурный
Размещение Напольный
Тип камеры сгорания Закрытый
Управление Электронное
Принцип работы твердотопливного котла Классический
Энергонезависимый Нет
Тип питания Трехфазное
Встроенный циркуляционный насос Нет
Встроенный расширительный бак Нет
Марка HeatExpert
Отапливаемая площадь от 4700 до 6700 м²
Отапливаемый объем от 13900 до 19900 м³
Энергоэффективность Высокая
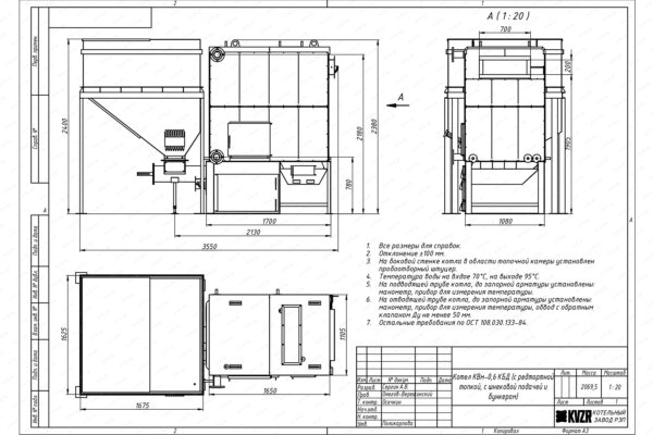
Котел на пеллетах 600 КВт чертеж
Чертеж котла на пеллетах 600 КВт
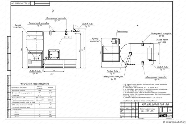
Чертеж автоматического котла на пеллетах 600 кВт с бункером 2 м3
Чертеж автоматического котла на пеллетах 600 кВт с бункером 2 м³
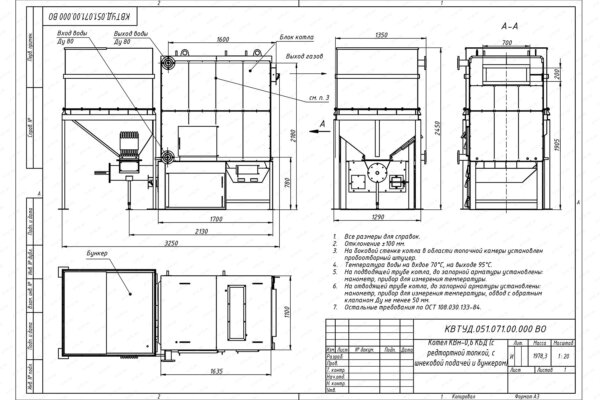
Чертеж автоматического котла на пеллетах 600 кВт с бункером 3 м3
Чертеж автоматического котла на пеллетах 600 кВт с бункером 3 м³

Промышленные пеллетные котлы 600 кВт в Салехарде

Промышленный автоматический пеллетный котел 600 кВт Салехард выполняется напольной горизонтальной водотрубной конструкцией. Сам котельный блок состоит из топки с ретортной горелкой, конвективного блока и зольника. К теплогенератору крепится бункер.

Шахматное расположение труб конвективной части обеспечивает высокий коэффициент теплоотдачи. Гидравлическая схема исключает образование застойных зон и перегрев трубной системы.

В конструкцию топки входит ретортная горелка с вращающимся колосником. Благодаря поворотному колоснику ретортная горелка обеспечивает равномерное распределение топлива по плите, осуществляет сброс сплавляющихся остатков, не допуская спекания и залипания на плите.

Промышленный отопительный пеллетный котел 600 кВт российского производства работает на всех видах пеллет, включая низкокачественные и агропеллеты. Под ретортой располагается зольный короб. Чистка котла производится редко в связи с низкой зольностью топлива. Герметичный бункер для пеллетного котла 600 кВт исключает обратную тягу и защищает топливо от возгорания.

Котел на гранулах 600 кВт имеет двойную подачу воздуха. Воздух на горение подается в топку через колосниковую решетку ретортной горелки. Чтобы избежать температурных колебаний, в центр чаши подается воздух для предварительной подсушки. Наш теплогенератор на пеллетах обеспечивает стабильную работу даже при загрузке влажного топлива.

Автоматика полностью контролирует работу котла на пилетах, позволяет производить дозированную подачу топлива для поддержания необходимых температурных режимов, контролирует горение, обеспечивает безопасность.

Как обеспечивается безопасность работы пеллетного котла 600 кВт

Водогрейный пеллетный котел 600 кВт производство Россия выполнен с высокой степенью пожаробезопасности. Безопасную работу котла обеспечивает автоматика, предупреждая о перегреве светозвуковой сигнализацией. Герметичный бункер исключает обратную тягу, тем самым защищает от обратного хода пламени в бункер. Термодатчик на корпусе шнека фиксирует повышение температуры и полностью сбрасывает топливо внутрь котла, предотвращая возгорание.

Российский пеллетный теплогенератор 600 кВт оснащен автономной системой пожаротушения прямого действия. Термочувствительный датчик производит открытие водяного клапана и подачу воды из резервуара в топку.

Купить пеллетный котел 600 кВт

Для того чтобы купить водогрейный котел на пеллетах 600 кВт в Салехарде , вы можете сделать заявку в отдел сбыта по телефону 8-800-700-06-43, либо оформить заявку он-лайн. Менеджеры дадут консультацию по подбору вспомогательного оборудования для выбранных вами моделей и рассчитают стоимость доставки. Транспортирование котлоагрегата и вспомогательного оборудования может осуществляться автотранспортом, ж/д полувагонами и речным транспортом.

Комплект поставки котла на пеллетах 600 кВт

Цена водогрейного котла на пеллетах 600 кВт включает в себя запорную арматуру и КИП в пределах котла, вентилятор поддува и предохранительные клапаны. Ниже приведена подробная информация.

Дополнительное оборудование котла на пеллетах 600 кВт

Для эффективной и надежной работы котла на пеллетах 600 кВт вам потребуется дополнительное оборудование - автоматика, дымосос, золоуловитель, насос сетевой и подпиточный, газоходы и переходники для газового тракта, дымовая труба. Мы предлагаем рассмотреть типовые варианты комплектации. В случае если у вас на объекте имеется насосное и тягодутьевое оборудование, мы можем проверить совместимость котла на пеллетах 600 кВт нашего производства и вашего оборудования. Можем изготовить нестандартные узлы для выполнения быстрого монтажа котла - газоходы и узлы обвязки. Типовую схему монтажа котла вы можете посмотреть во вкладке схемы подключения.

Автоматика котла пеллетного с ретортной горелкой
Автоматика пеллетного котла с ретортной горелкой
340000 руб. с НДС

Полностью автоматическое регулирование работы котла:

  • ручной розжиг котла;
  • автоматическое поддержание заданной температуры;
  • погодозависимое регулирование;
  • контроль уровня топлива в топливном бункере (при использовании пеллет);
  • автоматическое пожаротушение, в случае возгорания в шнеке;
  • возможно подключение удаленного контроля параметров работы котла посредством GSM, Ethernet, WiFi модуля (доп опция)
TD насос
Насос TD40-36G2 (5.5 кВт)
192700 руб. с НДС
ДН 3.5 дымосос
Дымосос ДН 3,5/1500
55900 руб. с НДС
ЗУ 0.6 золоуловитель
Золоуловитель 0,6
45000 руб. с НДС
  • Компактный золоуловитель для твердотопливных котлов
  • Может устанавливаться как сразу за котлом, так и на улице
  • Универсальная конструкция позволяет организовать выход справа или слева, в зависимости от компоновки газоходов
ДН 6.3 дымосос
Дымосос ДН 6,3/1500
101400 руб. с НДС

Монтаж и схемы подключения котла на пеллетах 600 кВт

Водогрейный стальной отопительный пеллетный котел 600 кВт, предназначен для получения горячей воды номинальной температурой на выходе из котла от 95 до 115 °С рабочим давлением до 0,3 (3,0) МПа (кгс/см), используемой в системах централизованного теплоснабжения на нужды отопления, горячего водоснабжения. Устанавливается в производственных, промышленных и отопительных котельных.

Монтаж и подключение котла на пеллетах 600 кВт

Водогрейный котел на пеллетах схема подключения

Схема подключения водогрейного котла работающего на пеллетах

Схема подключения пеллетного котла

Схема подключения пеллетного котла

Водогрейный пеллетный котел схема подключения

Сертификаты и гарантии котла на пеллетах 600 кВт

Водогрейный пеллетный котел 600 кВт имеет гарантийный срок 24 месяца. Срок работы при соблюдении правил монтажа и эксплуатации оборудования 10 лет.

Водогрейные котлы сертификат
Сертификат на водогрейные котлы
Сертификат на водогрейные котлы на газе и жидком топливе
Сертификат на водогрейные котлы на газе и жидком топливе

Подберите мощность котла для вашего объекта

Тип здания
Регион
Населенный пункт
Наружный объем здания
3)
Отапливаемый подвал
Объем подвала
3)

Отзывы о продукции

Другая похожая продукция

Котел на опилках 0.6 МВт автоматический
Котел 0.6 МВт на опилках
Максимальная тепловая мощность, МВт 0.6
Топливо Опилки, Твердое
Вид топки Вихревая, Автоматическая
Отапливаемая площадь, м² от 4700 до 6700
1 793 000 ₽
Котел 0.6 МВт дрова уголь
Котел 0.6 МВт уголь дрова
Максимальная тепловая мощность, МВт 0.6
Топливо Твердое, Уголь, Дрова
Вид топки Колосники, ОУР, Ручная
Отапливаемая площадь, м² от 4700 до 6700
649 000 ₽
Котел 0.6 МВт дрова уголь
Котел 600 кВт уголь дрова
Максимальная тепловая мощность, кВт 600
Топливо Твердое, Дрова
Вид топки Колосники, ОУР
Отапливаемая площадь, м² от 4700 до 6700
649 000 ₽
Котел на отходах древесных
Котел на древесных отходах 600 кВт
Максимальная тепловая мощность, кВт 600
Топливо Твердое, Дрова, Древесные отходы естественной влажности
Вид топки Ручная, подовая
Отапливаемая площадь, м² от 4700 до 6700
723 000 ₽
КВр котел 0.6 МВт
Котел КВр 600 КВт угольный
Максимальная тепловая мощность, кВт 600
Топливо Твердое, Уголь
Вид топки Ручная, Колосники
Отапливаемая площадь, м² от 4700 до 6700
618 000 ₽
Котел пеллетный 500 кВт
Пеллетный котел 500 кВт
Максимальная тепловая мощность, кВт 500
Топливо Пеллеты
Вид топки Ретортная, Автоматическая
Отапливаемая площадь, м² от 3900 до 5500
1 230 000 ₽